top of page

Target Intelligence Building Renovation
Albuquerque, New Mexico
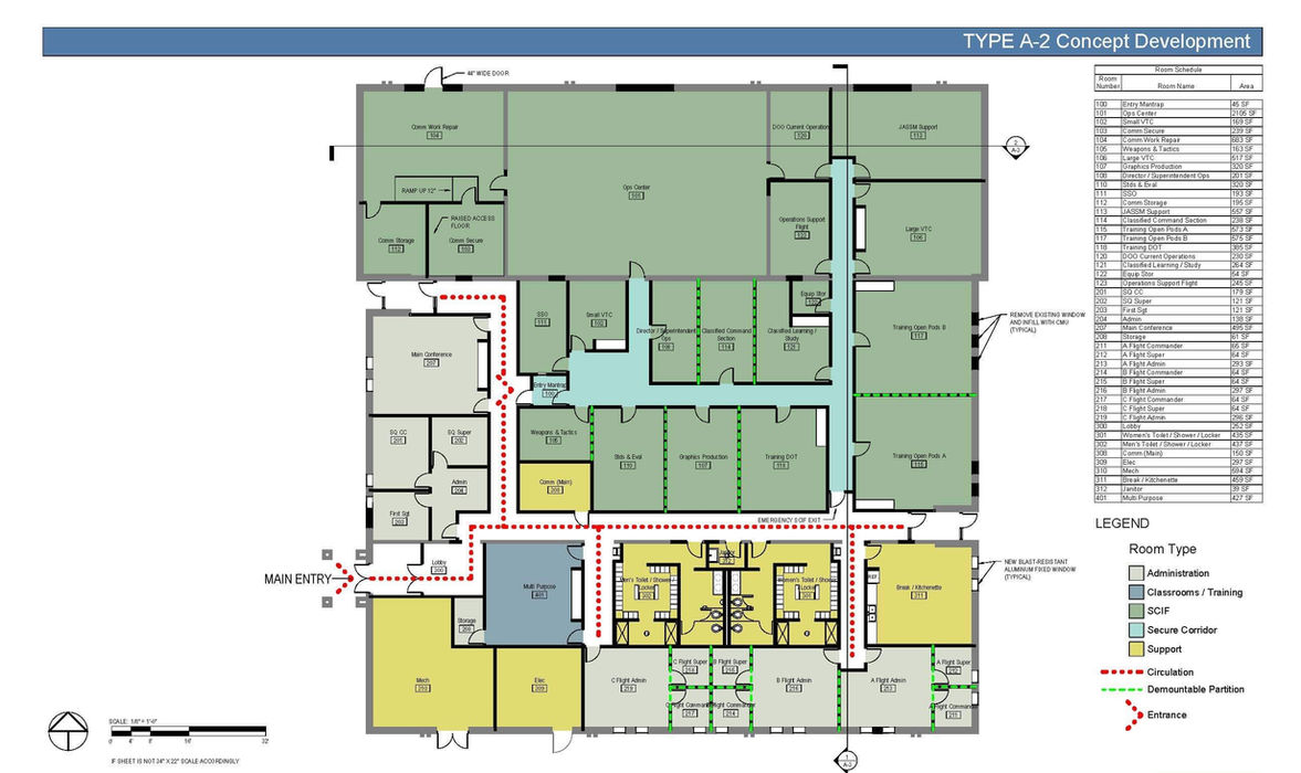
The renovation of the Target Intelligence Building fully transforms an administration facility into a large classified TS level secure compartmented information facility.
Admin and Office
Target Intelligence Building Renovation
Albuquerque, New Mexico
Target Intelligence Building Renovation
Albuquerque, New Mexico
DELIVERY METHOD
Design-Build
CERTIFICATIONS
LEED Silver
SIZE
17,000 SF
COMPLETION
2013
CONTRACTOR
RSCI Group
SERVICES
Stewart Brand wrote, “All buildings are predictions. All predictions are wrong.” It’s tempting to think of buildings as unchanging, but the reality is quite opposite. Buildings change and evolve around the activities both inside and outside. The way we work, play and live changes faster than perhaps we are comfortable with, while building codes evolve to reflect society’s fickle priorities.
Building 1044 was constructed with the purpose of maintaining aircraft in the 1970’s. Fast-forward forty years later, and the owner requires office space and secure data storage, not for maintaining aircraft. Oh, and it all must to fit within the existing envelope. Don’t forget it needs to meet the latest code requirements for life safety and energy conservation. Good luck stuffing in all the ductwork for meeting the current standards for ventilation and indoor air quality.
The main entrance was moved to change the circulation, facilitating a new interior layout that preserved existing bearing walls and defined a new floor plan arrangement relevant to the owner’s organizational structure. High bay spaces were reallocated for high-data use areas because their high ceilings provided an opportunity to raise floors for cable distribution below. Fiber optic cables were routed to all workstations to provide adaptable network access. The building envelope got a complete upgrade with new windows, a new roof, and continuous wall insulation to lower utility bills.
The building’s original designers didn’t predict the need for fiber optic data outlets and continuous wall insulation. Who knows what’s in store over the next 40 years for Building 1044, but it’s been refreshed, ready to face what’s to come.

bottom of page

